近年來,隨著5G、人工智能等技術的迅速發展,半導體行業的重要性日益凸顯。而硅材料作為半導體制造的核心材料,也受到了更多的關注。中國硅材料生產也隨著半導體行業的快速發展而進入了一個新的階段。并且隨著國家大基金的介入,以及一系列產業政策推進半導體關鍵設備和材料的國產化進程,大尺寸半導體硅片的國產替代開始加速,國內企業積極布局8英寸和12英寸硅片的產能。

有研半導體硅材料股份公司作為國內最早從事半導體硅材料研究的企業之一,公司高度重視創新,現已建立了成熟的研發體系,以用戶需求為導向,積極推進研發技術產業化和市場應用。

公司的集成電路用大尺寸硅材料規模化生產項目,實現了以8英寸為主的硅拋光片、大尺寸刻蝕設備用硅材料的規模化生產,并布局12英寸硅片項目。有力支持了中國集成電路產業的發展,同時產品遠銷美國、日本、韓國、中國臺灣等多個地區,在國內外市場享有良好的知名度和影響力。

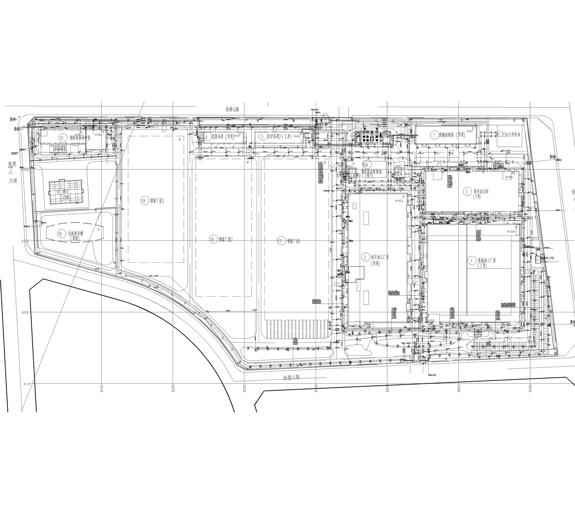
“山東有研集成電路用大尺寸硅材料規模化生產項目”落戶德州經濟技術開發區,總投資80億元,位列山東省2019年省重點項目名單榜首,是迄今為止德州投資額最大的集成電路硅材料產業項目。

其中一期建設年產276萬片8英寸硅片生產線,二期建設年產360萬片12英寸硅片生產線。項目瞄準我國重大戰略產業短板,填補山東省內相關領域空白,對全市發展新一代信息技術產業,打造戰略性新興特色產業集群意義重大。

項目一期占地326畝,建筑面積22萬平方米,建設單晶加工廠房、硅片加工廠房、綜合動力站等。

三個單體的建筑外墻皆采用萬事達的夾芯板墻面系統——麗彩鼎?夾芯板,這款夾芯板采用交錯式雙支撐企口,聚氨酯封邊,提供了絕佳的氣密水密、保溫性能。

其中萬事達的新一代3D立體墊片,提升了鋼板在螺釘處承載力和企口支撐的強度,賦予了外墻超強的抗風性能。

板材通過工廠預制,到現場快速安裝,實現了裝配式安裝的高效與精確。大大提高了施工速度,縮短了施工周期。并且還可以大幅度降低建筑垃圾和污染物的產生,符合可持續發展的理念。

外墻設計除卻實用性,其美觀性也十分重要。該項目的外墻采用了深灰、淺灰和白色,構成了富有層次感的外觀。白色占據了大部分的面積,淺灰色穿插其中,給人帶來清爽的現代感和科技感。而深灰色的加入又增添了嚴謹和穩重的氛圍。

整體的色彩組合,讓工業建筑突出專業性和現代感的同時,也為我們帶來了視覺上的享受。

隨著新能源汽車、人工智能、物聯網等新興產業的逐漸崛起,作為半導體硅片行業新的需求增長點,也為半導體硅片企業發展提供了巨大的市場空間。隨著應用領域不斷擴大,我國半導體硅片行業也將擁有廣闊的發展前景。
而萬事達作為專業的金屬圍護制造商和服務商,也將不斷進行技術升級和工藝突破,秉承科技與創新賦能綠色建筑的使命,探索出更加智能化、綠色化和可持續化的建筑圍護解決方案,助力高新技術產業穩步發展!

